Ga direct naar de hoofdinhoud
ISIGN Studio
HOME
AANPAK
REALISATIES
TOTAALRENOVATIE WONING
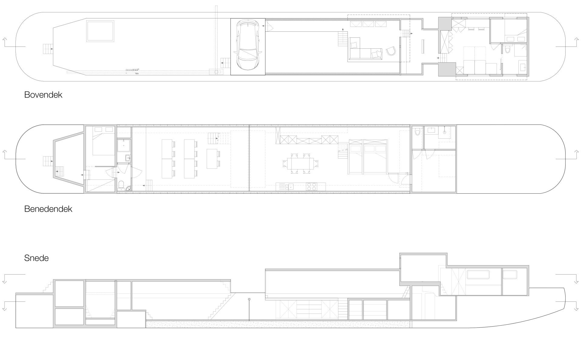
WONEN OP EEN BOOT
BADKAMER RENOVATIE
HOME OFFICE
CONTACT
WONEN OP EEN BOOT
- Interior design development & renders by Ohra Studio -